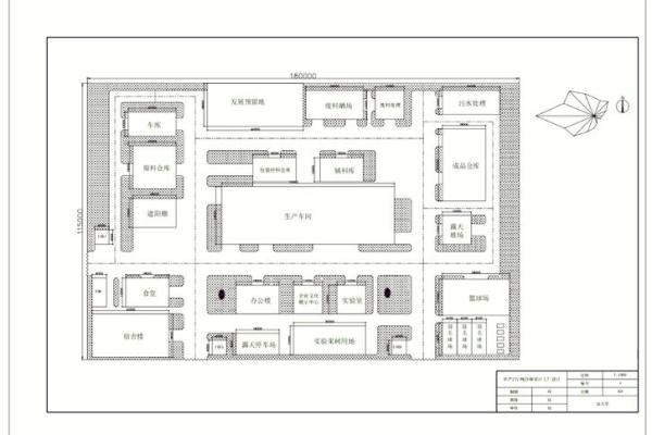
一个工厂合理的规划设计对一个公司而言效果与利益都是双收,格位置安排、工厂的大门位置这些都是决定一个工厂生意业务好坏的关键因素。 这是一家广州北云区太和镇,2005年由三个股东合伙开办的一家沙发厂,是在承包的土地上自己建的厂房(一层),每个股东都投入了近30万,工厂一直在亏损,到07年初,其中两个股东已退出经营,投入资金一分钱都没有收回来。刚刚过完春节,老板请我去做风水勘测,勘测图纸入下;八运盘(20042023)丁山癸向下卦。


声明:图片由网友上传,来源网络,如有侵权,敬请告知删除!
前面有一条小路,在前面是一个鱼塘。后面是一条公路(乡村公路)与大片空地,按理而论此格局为坐空朝空双向纳财的格局,看了我笑着说;中国有句属话叫端着银碗坐叫花,你们工厂就正好是这样。工厂的问题还很多;1、 工厂管理跟不上2、 产品设计开发跟不上3、 产品质量跟不上4、 业务销售跟不上5、 工厂没好事,不出这身出那事,搞得大家都没信心事实也正是入我说的一样。分析;办公室、大门在死气位临2黑5黄星,此大忌,所以工厂哪来好事,管理混乱。工厂最主要的地方,办公室、大门、裁剪缝纫开发室都在不吉的死气位上,造成以上一系列的问题。再来看看财运,前方向首是近旺九紫财星,后方是当运八白、运旺一白财星,而且前空后空两面都有旺财之气,本为旺财发财之地,但实际情况是;前方是长了十几年的果树紧靠窗户,生长很茂盛,站在厂里只看到树木看不到鱼塘,前方为明堂临财位,但被树木挡住,虽有鱼塘,但财星上山不下水,虽有如无起不了作用。再看后面虽有俩财星,但围墙紧临窗户,围墙外面是自然生长的杂草杂木,长得也很茂盛,把工厂围的密密实实,财气何以流通?实际格局形势不合理气,难以旺财。找出原因要改就比较简单了,首先把正前方的几颗树砍去,让前方九紫财星下水旺财,使明堂开阔。后方围墙不高,防君子不防小人,但对财运影响最大,拆除后面围墙,斩出后面杂草杂木,再把地势整平,这样三颗财星都能发挥作用。封掉现在的大门,改在正前方开大门。后面可以开一小门与前方大门错开,这样就能彻底扭转局面。在内部,西、西南两个位置为文曲旺位,把办公室、设计开发室搬到这两个位置,有利于公司管理与新产品开发。..国庆前夕,老板给我来电说现在有四五十个工人,请我过去看看,准备在再工厂旁边建一栋厂房,工厂的合理规划改造也能让企业起死回生。
版权归原创者所有,如有侵权请及时联系